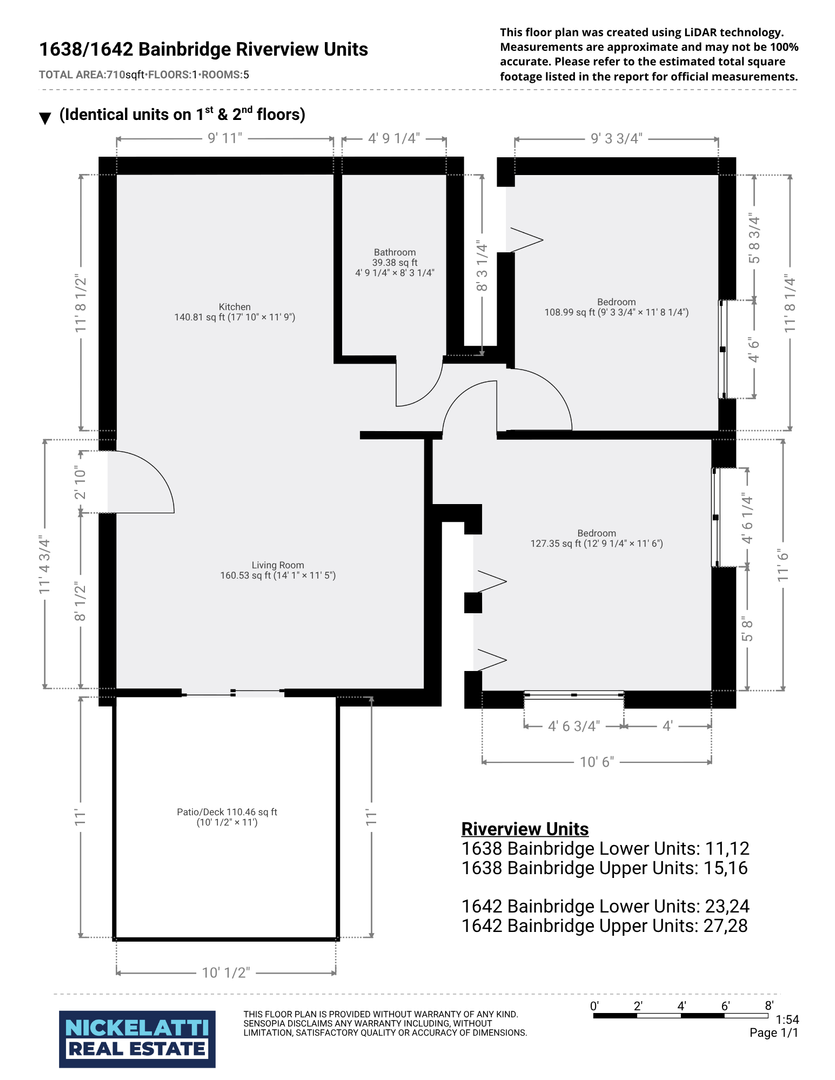
1638 Bainbridge St - 14, La Crosse, WI 54603
1638 Bainbridge St - 14, La Crosse, WI 54603
Waterfront Apartment with dock access!
Waterfront! Bright and roomy 2BR/1BA apartment located on the river on French Island. Enjoy direct waterfront living with optional dock access included for residents. On-site coin laundry and ample off-street parking available. Dishwasher can be added upon request.
Contact us:













